Descripción de la propiedad
                    Amplio local comercial remodelado, con piso, cristales, subdiviones y 2 medios baños.
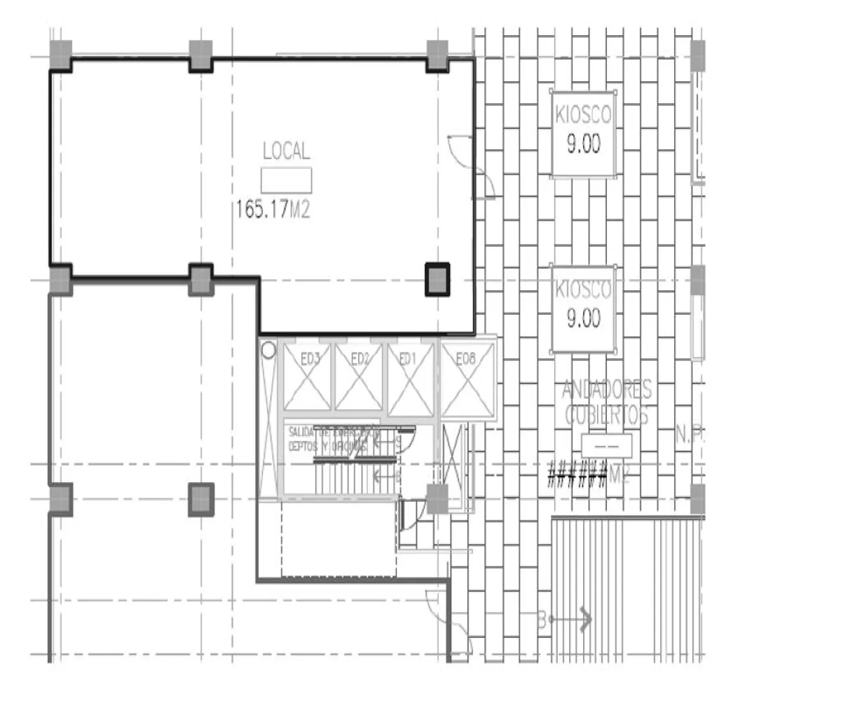
Local con un área cerrada de 165.17 m2.
El precio de renta es más IVA y mantenimiento.
Mantenimiento es el 15% del valor de la renta $10,921 más IVA
Espacio completo cuenta con 2 cajones de estacionamiento y tienes la opción a rentar pensiones adicionales con precio preferencial.
La renta no incluye muebles.
Características
                            2
Mapa
                            Indice de ubicación de servicios
	Mis favoritos 
                            
        No tienes ningún favorito en tu lista    
    Av Patria
Av Patria 1891, Zapopan, Jalisco 45116
165.17 m²
                                                                                            $62,764 Mensual
Contrato por 1 año
 
ID Listado#  p502RQs
							Precios sujetos a cambio sin previo aviso
						Detalles básicos
                            Tipo propiedad : Local
Operación : En Renta
ID Listado : p502RQs
Tipo de precio : Mensual
Precio : $62,764 Mensual
Mantenimiento : $10,042
Area terreno : 165.17 m²
Area construcción : 165.17 m²
Superficie construida : 165.17
Agenda tu Cita 
                                
                            ¿Preguntas? - Contáctanos 
                                Créditos hipotecarios 
                                
Simulador de Crédito 
                                La presente información es unicamente para efectos ilustrativos, las condiciones finales del crédito son responsabilidad de cada institución financiera

 
                     
                     
                     
                     
                     
                     
                     
                     
                     
                     
                     
                     
                     
                     
									 
									