Único Terreno en venta en el corazón de la Colonia El Retiro, Guadalajara.
*Ubicación Privilegiada: a solo 500 metros de la Calzada Independencia, Parque Morelos, Hospital Civil, acceso a estación de línea de Macrobus y cercana a la construcción de linea 3 de Tren Ligero.
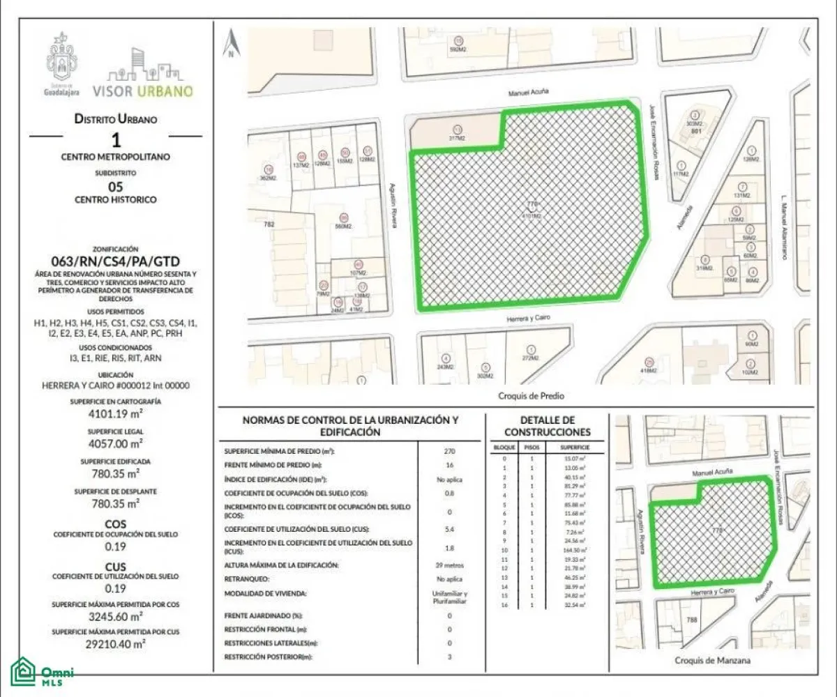
Colinda con 5 calles Herrera y Cairo, Agustín Rivera , Manuel Acuña, Encarnación Rosas y Diagonal Alameda.
 MANZANA COMPLETA.
*Superficie De Terreno 4101 m2.
*Ideal para construcción hasta 29,000 mts2, uso de suelo H5 y CS4
(Habitacional densidad alta y comercio y servicios de impacto alto)
*Oportunidad de Desarrollo para Inversionistas.
*Su extensión es muy buena.
*COS: 0.
80
*CUS 5.
4+ ICUS 1.
8  Total=7.
2
Hasta 39 metros de altura edificable.
*Superficie Máxima Permitida Por COS: 3245.
60 m2
*Superficie Permitida por CUS: 29210.
40 m2
*Usos Permitidos: H1, H2, H3, H4 ,H5, CS1, CS2, CS3, CS4, I1,  I2, E2, E4, E5, EA, ANP, PC, PRH.
  (Generadora de derechos de transferencia).
Terreno Venta Colonia El Retiro, Zona Centro Guadalajara (Manzana Completa)
Herrera y cairo 12, Guadalajara, Jalisco 44280
 


 
                     
                     
                     
                     
                     
                     
                     
									 
									