Terrenos en preventa dentro de parque industrial Discovery Park, bajo impacto, industria ligera y de servicios, almacén, manufactura, logística y agroindustria.
Se ubica en el Km 18.1 por la Carretera Guadalajara a Tala Jalisco, a un lado de la Unidad Habitacional Acacias. A 200m existe un retorno hacia Guadalajara
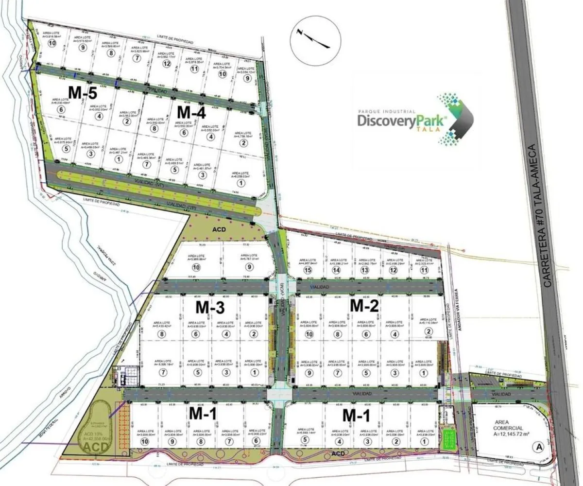
Cuenta con una superficie total de 37 hectáreas
De las cuales, 26 hectáreas en 57 lotes en Preventa
Desde 2323 m2 Hasta 6058 m2 ($3,300 m2)
Infraestructura:
Eléctrica: baja y media tensión, iluminación leds y celdas solares
Voz y datos: Tecnología actual bajo norma
Hidráulica: Planta de tratamiento, derechos de agua, drenaje sanitario y pluvial, sistema contra incendios
Vialidades híbridas: concreto y asfalto
Equipamiento:
Instalaciones mixtas
Seguridad 24/7
Control de acceso vehicular y peatonal
Mas de 200 cajones de estacionamientos comunes y de visitas
Áreas comunes de servicios
Área comercial de 12,146m2 y de servicios
Áreas verdes
Oficina de administración
Subestación Eléctrica de 6MW
Poblaciones cercanas como Tala, Ahualulco, El Arenal, Teuchitlán.
70% de Construcción de acuerdo al tamaño del Terreno
Terrenos industriales en venta en Tala, Jalisco, DISCOVERY PARK TALA
guadalajara - Tala Km 18.5, Tala, Jalisco 45300

