Edificio multiusos para oficinas en zona Minerva de +1000 m2, ubicado en la colonia Jardines del Bosque, en una de las zonas más céntricas de la Guadalajara, en excelentes condiciones y una construcción de 1,345.00 m2 en un terreno de 600.00 m2.
Características:
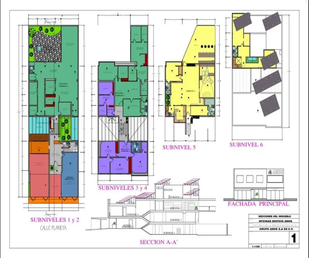
El edificio cuenta con 10 cajones de estacionamiento, 8 con portón eléctrico, y se divide en 6 subniveles. Además, cuenta con áreas de oficinas y pen-house de lujo con terrazas, cine, cuarto de ejercicio, Jacuzzi, balcón y más.
Ahorro energético:
El edificio cuenta con 58 panes solares de última generación con menos de 3 años de instalación, lo que permite ahorrar cerca del total de gasto eléctrico generando por tu negocio. Los paneles se venden incluidos con la propiedad.
** + DE $40,000 de ahorro energético bimestrales**
Su ubicación:
La colonia Jardines del Bosque es famosa por la accesibilidad a vías principales de la ciudad como Av. López Mateos, Av. Mariano Otero y Av. Lázaro Cárdenas a menos de un kilómetro. Con accesos directos a Av. de los Arcos y Av. Niños Héroes. Además, se encuentra cerca de restaurantes, hoteles, escuelas y farmacias.
*El precio es mas el IVA de las construcciones, como todo Edificio comercial.
Venta y Renta de Edificio Multiusos para Oficinas en Zona Minerva
Planeta 2686, Guadalajara, Jalisco 44520

