Descripción de la propiedad
Ubicada en Centro Logistico Jalisco, Acatlán de Juárez.
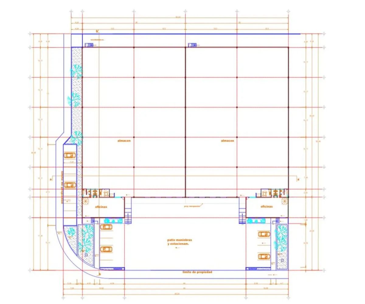
Son 4286m2 de bodega y oficinas + el patio de maniobras.
Cuentea con hidratantes, 8 andenes, comedor, 2 áreas de oficinas, salidas de emergencia.
Ubicación estratégica para importadores que entran por Manzanillo, ya que tienen el Macrolibramiento a 10 min.
$105 x m2
Mapa
Jal
GDL
Zapotlán el Grande
Acatlan de Juarez
45713
Carretera Libre Acatlán de Juárez a Cd. Guzmán Km 11
401
1
W104° 24' 21.3''
N20° 24' 25.1''
Indice de ubicación de servicios
Mis favoritos
No tienes ningún favorito en tu lista
RENTA Bodega industrial de 4000 m2
Carretera Libre Acatlán de Juárez a Cd. Guzmán Km 11 401, Zapotlán el Grande, Jalisco 45713
4,286 m²
$450,030 Mensual
Contrato por 1 año
ID Listado# pBxnQax
Precios sujetos a cambio sin previo aviso
Detalles básicos
Tipo propiedad : Bodega
Operación : En Renta
ID Listado : pBxnQax
Tipo de precio : Mensual
Precio : $450,030 Mensual
Mantenimiento : Llamar
Area terreno : 4,286 m²
Agenda tu Cita
¿Preguntas? - Contáctanos
Créditos hipotecarios

Simulador de Crédito
La presente información es unicamente para efectos ilustrativos, las condiciones finales del crédito son responsabilidad de cada institución financiera
