Descripción de la propiedad
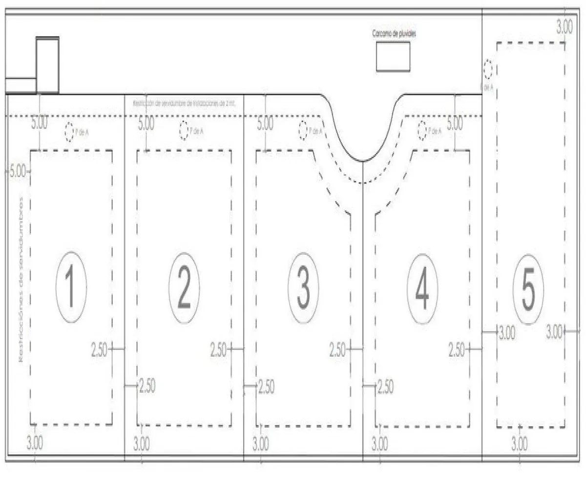
ubicación en Av. Pablo Neruda, vive en el corazón de Colinas de San Javier, el terreno se encuentra dentro de un coto privado de únicamente 5 terrenos. Ideal para inversión y construcción
Características
Mapa
Jal
GDL
Zapopan
Colinas de San Javier
44660
Av Pablo Neruda
3813
Lote 1
0
W104° 35' 41.7''
N20° 41' 49.3''
-
Indice de ubicación de servicios
Mis favoritos
No tienes ningún favorito en tu lista
TERRENO EN VENTA EN COLINAS DE SAN JAVIER
Av Pablo Neruda 3813 Lote 1, Zapopan, Jalisco 44660
783.12 m²
$21,927,360
ID Listado# pI12Wr2
Precios sujetos a cambio sin previo aviso
Detalles básicos
Tipo propiedad : Terreno
Operación : En Venta
ID Listado : pI12Wr2
Precio : $21,927,360
Mantenimiento : Llamar
Area terreno : 783.12 m²
frente : 24
fondo : 32.6
Agenda tu Cita
¿Preguntas? - Contáctanos
Créditos hipotecarios

Simulador de Crédito
La presente información es unicamente para efectos ilustrativos, las condiciones finales del crédito son responsabilidad de cada institución financiera
